Integration am Stadtrand
Gärtnereibetriebe, Kleingartenvereine, ein Einkaufszentrum und Industriebauten, weiträumige Erholungsgebiete... – typisches, wenig spektakuläres Bild an der Wiener Peripherie... zugleich Hintergrund eines beachtenswerten Integrationsprojektes ...Gärtnereibetriebe, Kleingartenvereine, ein Einkaufszentrum und Industriebauten, weiträumige Erholungsgebiete... - typisches, wenig spektakuläres Bild an der Wiener Peripherie... zugleich Hintergrund eines beachenswerten Integrationsprojektes
Gärtnereibetriebe, Kleingartenvereine, ein Einkaufszentrum und Industriebauten, weiträumige Erholungsgebiete... - typisches, wenig spektakuläres Bild an der Wiener Peripherie... zugleich Hintergrund eines beachenswerten Integrationsprojektes


Kaiserebersdorf - in the middle of nowhere
Zwei Buslinien stellen die öffentliche Verkehrsanbindung des Grundstückes am östlichen Stadtrand Wiens dar, ungefähr eine Stunde braucht man von hier ins Zentrum. Das Areal ist auch gegenüber der Nachbarschaft ziemlich isoliert: Zum angrenzenden »Shopping-Paradies« führt der Weg nur durch ein in einen Maschendrahtzaun geschnittenes Loch, die Lieferzufahrt entlang über einen Parkplatz. Im Süden stellt die A4 eine unüberwindbare Barriere dar. Die Situation erinnert ein wenig an die griechische Antike: Die »Barbaren« waren unter staatsbürgerlichen Schutz (und Aufsicht) gestellt - sie arbeiteten in der griechischen Wirtschaft, wohnten jedoch an den Rändern der Städte.
Das Grundstück - the story of Macondo City
Die morphologische Strukturierung des Grundstückes, ein ehemaliges Kasernenareal, ist noch deutlich erkennbar. Die Mannschaftsgebäude bieten vielen Flüchtlingen, mittlerweile schon der 3. Generation, einfachsten Wohnraum. Auf dem Exerzierplatz liegen Kleingärten für größere Flüchtlingsfamilien, umgeben von urwaldähnlicher Vegetation. Bungalows komplettieren das Ensemble, das unter dem Namen Macondo Bekanntheit erlangte. Im Jahr der Ungarnkrise (1956) begann man hier, Wohnungen für Flüchtlinge einzurichten, es folgten darauf tschechische Flüchtlinge (1968), Vertriebene aus Uganda (1972), Vietnam und Kambodscha und andere. Den nachhaltigsten Eindruck hinterließen aber Flüchtlinge aus Chile (ungefähr 1500 Menschen). Sie waren es auch, die ihrer neuen Heimat, der Kaserne, den Namen »Macondo City« gaben - ein gleichnamiges Musiklokal im fünften Wiener Gemeindebezirk wurde parallel dazu gegründet, ein Kultursatellit in der Stadt. Der Name ist dem Roman »Hundert Jahre Einsamkeit« des kolumbianischen Schriftstellers Gabriel Garcia Marquez entnommen und bezeichnet dort eine einsame, verlassene Provinzstadt, eine dezente Anspielung auf die städtebauliche Realität in Kaiserebersdorf? Aufgrund des hohen Selbstorganisationsgrades der chilenischen Flüchtlinge und trotz der Vielzahl politischer Richtungen entwickelte sich ein sozial sehr verträgliches Leben, sogar ein eigener Fußballklub wurde gegründet, nach »außen« vertrat ein gewählter »Bürgermeister« die Interessen der BewohnerInnen. Die Mietzinseinnahmen bildeten damals ein Drittel des Budgets des »Fonds zur Integration von Flüchtlingen«! Der Fonds, nicht gleich bedeutend mit dem Wiener Integrationsfonds, wurde im Jahr 1960 gegründet. Seine Aufgabe besteht darin, Konventionsflüchtlingen Hilfe bei der Integration zu leisten, ursprünglich nur finanziell, später als »Integrationspartner«, der auch aktiv bei der Arbeitssuche unterstützt. Während der intensiven Phase der Betreuung, maximal sechs Monate, werden die Flüchtlinge in Integrationswohnheimen untergebracht.
Das Integrationsheim in der Zinnergasse - hope in the outskirts
Im Jahr 1991 fanden erste Gespräche über das 130 000 m² große Areal in Kaiserebersdorf statt, wovon 50 % schließlich durch ein Einkaufszentrum verbaut wurden. In einem Baurechtsvertrag stellte der Bund das Grundstück kostenlos zur Verfügung, während er im Gegenzug das Zuweisungsrecht für die Wohnungen erhielt - der Grundflächenerwerb bedeutet für Integrationsprojekte meist ein großes Problem. 1994 wurde mit der Planung begonnen, Baubeginn war 1996, Sommer 1998 zogen die ersten BewohnerInnen der 133 Wohneinheiten ein. Die Mieteinnahmen fließen direkt an den Bauträger, eine Genossenschaft, die auch die hausinternen Seminarräume vermietet, die Mietverträge sind auf fünf Jahre befristet. BewohnerInnen sind nicht nur Konventionsflüchtlinge, die bereits den Integrationskurs durchlaufen und Arbeit gefunden haben, oder bosnische Kriegsflüchtlinge: auch Frauen aus dem Frauenhaus sowie Polizeischüler haben Wohnungen bezogen.
Prämissen bei der Planung - the architects´view
Ein wesentlicher Aspekt war Wirtschaftlichkeit, der Rahmen der Wohnbauförderung musste unbedingt eingehalten werden. Durch die Ausweisung als Wohnheim fiel die Stellplatzverpflichtung weg, in den Wohnungen konnte auf Vorräume verzichtet werden, Bad und WC wurden meist zusammengelegt. Sämtliche Bestimmungen für Behindertengerechtigkeit konnten vernachlässigt werden. Die Architekten Schwalm - Theiss und Gressenbauer minimierten Verkehrsflächen und versuchten, durch wirtschaftliche Spannweiten und Konzentration sämtlicher Installationen die Kosten zu begrenzen. Die Verwendung von Fertigteilelementen etwa bei der Laubengangkonstruktion senkte die Kosten abermals. Trotz der hohen Ansprüche bezüglich Sparsamkeit wurde Wohnqualität angestrebt.
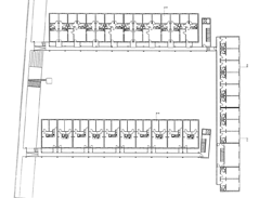
Das Konzept - master plan
Auf die städtebaulich sehr diffuse Situation reagierten die Architekten mit einer nach Norden und Osten relativ geschlossenen Bebauung. Die Anlage öffnet sich gegen Westen über einen Hof und nach Süden über eine vom Gebäudevolumen abgesetzte, offene Erschließung - die Baukörper geraten so viel schlanker als bei integrierter Ausbildung des Laubenganges. Zwei fünfgeschossige, südwestorientierte Wohnriegel ergeben gemeinsam mit dem dreigeschossigen, ostorientierten Kopftrakt eine u-förmige Bebauungsstruktur. Die Stiegenhäuser sind freigestellte Türme -der südliche, leicht gedrehte Treppenturm markiert gleichzeitig den Eingangsbereich der Anlage. Brückenartige Verbindungen zwischen den Riegeln fassen die Anlage auf subtile Weise.

Laubengänge mal anders - living galleries
Die typologische Ausbildung als Außenganghäuser bedeutet eine wirtschaftliche Erschließung (Einsparung von kostenintensiven Treppenhäusern bzw. Liften). In den südorientierten Blöcken sind die Laubengänge als offene und eigenständige Konstruktion von den Wohnriegeln abgesetzt, man läuft nicht eine Wand entlang, sondern geht über breite »Stege« (eine optische Täuschung: die Gänge sind nicht breiter als 1.30m). Durch die Lage im Süden der Trakte ist die Erschließung nicht bloß Verkehrsfläche, sondern zugleich attraktive Kommunikationszone, eine »Wohnstraße«. Die Strategie, diese vom Gebäude abzusetzen, lässt einen eigenen Raum entstehen, eine Art »Filter« zwischen den Höfen und den Wohnungen, Schutz vor Einblick und Sonne. Das Freistellen der Konstruktion erlaubt unmittelbar den Wohneinheiten zugeordnete Vorplätze (je zwei Wohnungen teilen sich einen Vorbereich), brückenartige Verbindungen zwischen Laubengang und Wohnungseingängen, die als konstruktiv eigenständige Elemente zur Aussteifung des Laubenganges dienen. Die Stahlbetonplatten greifen als Stufe in diesen ein. Der Niveauunterschied verdeutlicht den halbprivaten Bereich, der so aus dem Verkehrsfluss der Erschließung genommen wird: Verbindung und Trennung, die Artikulation als Schwelle werden thematisiert. Für den Laubengang bedeutet dies eine zusätzliche Rhythmisierung sowie die Markierung der Eingangsbereiche. Die Bewohner gestalten diese Fläche manchmal wie einen kleinen Vorgarten, ein anderes Mal wie ein zusätzliches Zimmer, in dem man Besuch empfängt. Gespräche führt man hier oft über mehrere Stockwerke hinweg. Auch Hausarbeiten werden ausgelagert, während Kinder einen privaten Spielplatz in unmittelbarer Nähe ihrer Mutter vorfinden. Manche würden trotzdem einen kleinen Vorraum vorziehen, der vor allem im Winter die nasse Kleidung aufnehmen könnte. Es ginge aber ein attraktiver, direkt den Wohnungen zugeordneter Freibereich verloren, der Laubengang würde seines kommunikativen Charakters und wichtiger sozialer Funktionen beraubt. Die Fassade ist hellgrau gestrichen, zwischen den Fenstertüren wurden Farbfelder ausgeführt. Sie brechen die Länge der Erschließung. Die Raumbildung durch Farbe (Ausweitung und Einengung) entsteht zufällig, nicht aufgrund eines ausgeklügelten Farbkonzeptes. Ein reizvolles Fassadenspiel unterschiedlich weit geöffneter Läden und ihrer Schattenwürfe zeigt raumgreifende Wirkung. Im letzten Stockwerk tritt durch das Fehlen der Farbe und der »Raumschicht« Laubengang ein Wechsel in der Wahrnehmung ein: Die Fassade tritt in den Hintergrund, die Aufmerksamkeit wird auf den Außenraum gelenkt.

Wohnen ohne Vorraum - more space / less rooms
Die Lage der Erschließung wirkt sich auch auf die Wohnungsgrundrisse aus: Werden Laubengängen üblicherweise Nebenräume (Küche, etc.) zugeordnet, so betritt man hier über die Vorplätze direkt den Wohnraum (Vorzimmer sind aus Gründen der Sparsamkeit und um eine gewisse Großzügigkeit zu schaffen, nicht vorgesehen). Die Sanitärzone kommt in der Mitte der Wohnung zu liegen, was geschützte, im Norden liegende Schlafräume schafft. Es besteht die Möglichkeit der Querlüftung. Die Wohnräume sind ausnahmslos nach Süden orientiert, entgegen der üblichen Monofunktionalität werden sie zu einem »Lebensbereich« weiterentwickelt. Oft stellt ja der Spiel-, Koch-, Ess- und Hausarbeitsbereich untertags das eigentliche Zentrum des Wohnens dar.

Der Schönheitsfehler - lapsus
Die Wohnungen des Kopftraktes besitzen keine halbprivaten Vorplätze, der Schwellenbereich ist auf die Türleibung reduziert. Wohnraum, Vorraum und Bad/WC weichen deutlich vom konzeptiven Schema der übrigen Wohneinheiten ab. Ausschließlich nach Osten und auf einen Parkplatz (!) orientiert (keine Querlüftung) entspricht der Grundriss dem Typus eines Hotelzimmers. Die Erschließung hat kaum kommunikative Qualität, vom gemeinschaftlichen Leben der Anlage ist man isoliert. Ein Verzicht auf den überdimensionierten Vorraum, eine Kochzeile mit Fenster zum Gang an seiner Stelle könnte diesen wieder zum Ort eines Gespräches unter Nachbarn machen. Das verlängerte Wohnzimmer - living under open sky. Ebenso wichtig wie die präzise Ausformung der Baukörper war für die Planer die Gestaltung und Nutzbarkeit der Freibereiche, die »Aneignung« durch die Bewohner sollte geradezu provoziert werden. Unterschiedliche Qualitäten sprechen verschiedene Nutzergruppen an. Sie sind Spielplatz und Treffpunkt, bei Schönwetter Ort diverser Hausarbeiten. Die Tätigkeiten und die gerade »bespielten« Bereiche wechseln über den Tagesverlauf. Durch die u-förmige Anordnung der Baukörper entsteht ein Hof, der die Anlage Richtung Westen öffnet, wodurch selbst am Abend noch große Teile besonnt sind. Eine Mauer bietet Sicht- und Schallschutz gegenüber der Anlieferungszone des benachbarten Einkaufszentrums. Sämtliche Wege der Bewohner führen über den Hof, was diesen ständig mit Leben erfüllt. Eine Dachterrasse bietet einen herrlichen Rundblick über die Anlage. Von den Stiegenhaustürmen über Brücken erschlossen, ist sie ein wesentliches Element in der Konzeption der Beziehung zwischen den Trakten - leider hat der Betreiber aus Sicherheitsüberlegungen beide Zugänge versperrt! Einrichtungen wie ein Kindertagesheim auch für Kinder von »außerhalb«, Seminarräume für Sprachschulungen und eine kleine Bibliothek für Kinder vervollständigen das Angebot der Anlage, die in einer städtebaulichen Extremsituation die Vorraussetzungen dafür schafft, den Schritt in ein neues Leben und eine bessere Zukunft zu bewältigen. Neue Ideen für das Wohnen von Menschen am Rande der Gesellschaft geben Hoffnung, dass derartige Projekte vielleicht demnächst nicht mehr nur am Rande der Stadt entstehen...
Oliver Rosenauer
Beitrag des BMfI vom Juni 93, »Wohnungen für Flüchtlinge«.
Aufsatz von Julia Kristeva: »Fremde sind wir uns selber«.
Gespräch mit Dkfm. Gerhard Engelhardt, Geschäftsführer des Fonds zur Integration von Flüchtlingen.
Gespräch mit Hannes Seitner, ehem. Geschäftsführer des Wiener Integrationsfonds.